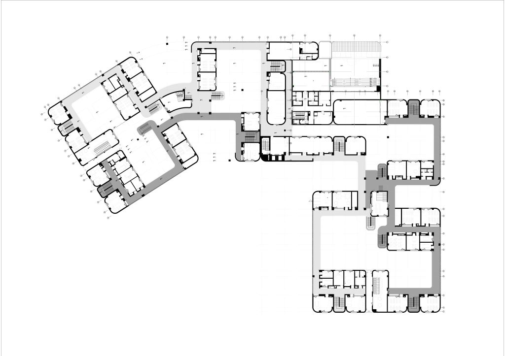
Quartet of Learning Four Schools in Spatial Dialogue is an educational complex composed of four interwoven schools: primary and secondary for both girls and boys. Within a context where strict physical separation is mandated between boys’ and girls’ schools, the architecture responds not by reinforcing division, but by gently and strategically dissolving it — without overstepping it. Boundaries are softened through overlapping programs, shared atmospheres, and interwoven spatial layers that quietly restore connection where it is formally denied.
